***Genießen Sie die Sommerabende auf der Dachterrasse***

55294 Bodenheim, Doppelhaushälfte zum Kauf

Kontaktdaten

Sascha Mehren, Mehren Immobilien

Objektdaten

  • Objekt-ID
    4598980
  • Objekttypen
    Doppelhaushälfte, Haus
  • Adresse
    55294 Bodenheim
    Rheinland-Pfalz
  • Etagen im Haus
    2
  • Wohnfläche ca.
    108 m²
  • Grund­stück ca.
    193 m²
  • Grundflächenzahl
    0.3
  • Geschoss­flä­chen­zahl
    6
  • Zimmer
    4
  • Schlafzimmer
    3
  • Badezimmer
    1
  • Balkone
    1
  • Ausstattung
    gehoben
  • Bodenbelag
    Fliesen
  • Bebaubar nach
    Bebauungsplan
  • Erschließung
    vollerschlossen
  • Außen­stellplätze
    2
  • Käufer­provision
    21.240,00 € inkl. MwSt.
    Die Käufercourtage in Höhe von 21.420,00 € € auf den Grundstückpreis einschließlich gesetzlicher Mehrwertsteuer ist bei notariellem Vertragsabschluss verdient und sofort fällig.
  • Kaufpreis
    695.000 EUR

Ausstattung / Merkmale

  • ✓ Abstellraum
  • ✓ Außenstellplatz
  • ✓ Badewanne
  • ✓ Balkon
  • ✓ Dusche
  • ✓ Fliesenboden
  • ✓ Garten/Gartennutzung
  • ✓ Gäste-WC
  • ✓ Tageslichtbad

Objekt­beschreibung

Beschreibung

Auf diesem wunderschönen Grundstück am Ortsrand von Bodenheim entstehen zwei moderne Doppelhäuser.

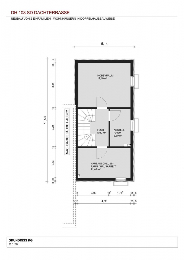
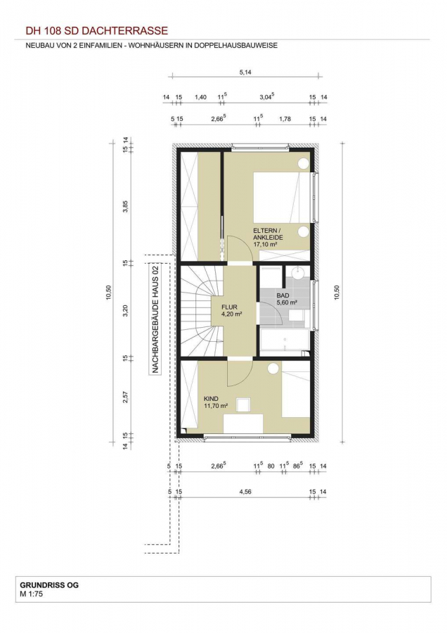
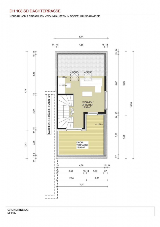
Diese Doppelhaushälfte überzeugt durch ihre zeitgemäße Architektur und klare Linienführung. Auf einer Wohnfläche von ca. 108 m² bietet das Haus ausreichend Platz für eine Familie. Das zweigeschossige Gebäude mit ausgebautem Dachgeschoss und großer Dachterrasse verfügt über insgesamt 4 Zimmer, darunter 3 Schlafzimmer sowie ein Badezimmer. Ein PKW-Stellplatz gehört ebenfalls zur Immobilie, die auf einem ca. 193 m² großen Grundstück liegt.

Im Erdgeschoss befinden sich das großzügige Wohnzimmer, die Küche sowie ein Gäste-WC. Vom Wohnbereich aus gelangen Sie direkt auf die Terrasse, die zum Entspannen im Freien einlädt.

Das Obergeschoss umfasst zwei gut geschnittene Schlafzimmer sowie ein großzügiges Badezimmer.

Im Dachgeschoss befindet sich ein weiteres Zimmer, das flexibel als Schlafzimmer, Büro oder Hobbyraum genutzt werden kann. Das Highlight dieses Geschosses ist die nach Westen ausgerichtete Dachterrasse, auf der sich die Sommerabende perfekt genießen lassen.

Durch die durchdachte Raumaufteilung eignet sich das Haus ideal für Familien. Da sich das Objekt noch im Projektierten Zustand befindet, können individuelle Wünsche bei der Fertigstellung berücksichtigt werden. Die Lage ist hervorragend – ruhig, naturnah und umgeben von Weinbergen. Insgesamt besticht diese Immobilie durch ihre moderne Ausstattung, das attraktive Raumkonzept und die ausgezeichnete Wohnlage.

Die Grundrisse sind frei planbar und werden nach Ihren Wünschen kostenfrei angepasst.
Außerdem besteht die Möglichkeit, gegen Aufpreis einen Keller zu realisieren.

Für das Grundstück fällt eine Maklerprovision in Höhe von 21.240,00 € an.

Rechtlicher Hinweis
Alle Angaben erfolgen ohne Gewähr und basieren auf Informationen des Eigentümers sowie den B-Plan-Kennzahlen GRZ 0,3 und GFZ 0,6. Maßgeblich sind die amtlichen Festsetzungen, die Baugenehmigung und die individuelle Entwurfsplanung.

Ausstattung

  • FESTPREISGARANTIE
  • MASSIVBAUWEISE STEIN AUF STEIN
  • INDIVIDUELLE GRUNDRISSGESTALTUNG
  • ARCHITEKTENLEISTUNG
  • BAUANTRAGSERSTELLUNG
  • BAUGEWÄHRLEISTUNG 5 JAHRE NACH BGB
  • STATIK & WÄRMESCHUTZNACHWEIS
  • AUSGEBAUTES DACHGESCHOSS
  • INKL. FLIESEN IN WC UND BAD, SOWIE KÜCHE
  • INKL. TERRASSENTRENNWAND ZUM NACHBAR
  • INKL. TERRASSE
  • INKL. STELLPLATZ
  • INKL. ZUWEGUNG
  • INKL BAUNEBENKOSTEN
  • MODERNE ARCHITEKTUR
  • DURCHDACHTE GRUNDRISSE
  • LICHTDURCHFLUTETE RÄUME
  • DREIFACHVERGLASUNG
  • FUSSBODENHEIZUNG
  • ELEKTRISCHE ROLLLÄDEN
  • ATTRAKTIVE BÄDER
  • HOCHWERTIGE AUSFÜHRUNG
  • GEGENSPRECHANLAGE
  • UVM.

Im Preis nicht enthalten sind die restlichen Malerarbeiten und der Oberbodenbelag (außer WC, Bad, Küche), sowie die Hausanschlüsse der Gemeinde.
Gegen Aufpreis können die restlichen Wand- und Bodenbeläge vom Bauträger angeboten werden.

Sonstiges

Haftung:
Wir weisen darauf hin, dass die von uns weitergegebenen Objektinformationen, Unterlagen, Pläne usw. vom Verkäufer stammen. Eine Haftung für die Richtigkeit oder Vollständigkeit der Angaben übernehmen wir daher nicht. Es obliegt daher unseren Kunden, die darin enthaltenen Objektinformationen und Angaben auf ihre Richtigkeit hin zu überprüfen. Alle Immobilienangebote sind freibleibend und vorbehaltlich Irrtümer, Zwischenverkauf- und Vermietung oder sonstiger Zwischenverwertung.

Geldwäsche:
Als Immobilienmaklerunternehmen ist Mehren Immobilien nach § 2 Abs. 1 Nr. 14 und § 11 Abs. 1.2 Geldwäschegesetz (GwG) dazu verpflichtet, bei der Begründung einer Geschäftsbeziehung die Identität des Vertragspartners festzustellen und zu überprüfen, bzw. sobald ein ernsthaftes Interesse an der Durchführung des Immobilienkaufvertrages beseht. Hierzu ist es erforderlich, dass wir nach § 11 Abs. 4 GwG die relevanten Daten Ihres Personalausweises festhalten (wenn Sie als natürliche Person handeln) - beispielsweise mittels einer Kopie. Bei einer juristischen Person benötigen wir eine Kopie des Handelsregisterauszuges, aus welchem der wirtschaftlich Berechtigte hervorgeht. Das Geldwäschegesetz sieht vor, dass der Makler die Kopien bzw. Unterlagen fünf Jahre aufbewahren muss. Als unser Vertragspartner haben Sie auch ein Mitwirkungsrecht nach § 11. Abs. 6 GwG.

Lage

Bodenheim (Rheinhessen) steht für hohe Wohnqualität, kurze Wege und sehr gute Anbindung in den Rhein-Main-Ballungsraum. Das Grundstück befindet sich in einem gewachsenen, ruhigen Wohnumfeld. Einkaufsmöglichkeiten, Kitas/Schulen, Gastronomie, Winzerhöfe sowie Freizeit- und Naherholungsangebote (Weinberge, Rhein) sind schnell erreichbar; Mainz ist in wenigen Fahrminuten angebunden – ideal für Familien, Paare und Pendler.

Die dargestellte Position der Immobilie ist nur eine ungefähre Angabe.

Direktanfrage

* Pflichtangaben
 SSL-verschlüsselt
Immobiliendaten-Import und Darstellung für WordPress: WP-ImmoMakler
KONTAKT
  • Gonsenheimer Straße 24
    55126 Mainz

  • 06131 / 2072882
  • 06131 / 2072883
  • 0176 / 85185645
  • info@mehren-immobilien.de
  • www.mehren-immobilien.de
ÖFFNUNGSZEITEN
  • Montag - Freitag:

    09:00–17:00

  • Samstag:

    geschlossen

  • Sonntag:

    geschlossen

SEO und Webdesign realisiert von Online Marketing Agentur ALMARON